Вентиляция в стене квартиры: необходимость, типы и установка
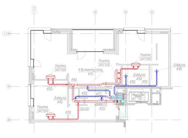
Вентиляция в квартире – это не просто прихоть, а жизненная необходимость. Она обеспечивает приток свежего воздуха, удаляет загрязненный воздух, регулирует влажность и предотвращает образование плесени и грибка. Отсутствие или неисправность вентиляционной системы может привести к серьезным проблемам со здоровьем, а также к ухудшению состояния строительных конструкций. Одним из вариантов организации вентиляции является установка ее непосредственно в стену, что может быть особенно актуально для квартир, где другие способы затруднены или невозможны. В этой статье мы подробно рассмотрим, зачем нужна вентиляция в стене квартиры, какие типы систем существуют, как их установить и обслуживать. Зачем нужна вентиляция в квартире? Недостаточная вентиляция в квартире создает множество проблем, начин...









